ferienhaus zugersee, meierskappel
kurzdaten Bauherrschaft privat · 2004/2010 · Umbau in zwei Etappen, (Erdgeschoss 2004 / Aufstockung Attika 2010) ·
Das unmittelbar am Ufer des Zugersees gelegene Ferienhaus aus den 1950er Jahren wurde in zwei Etappen umfassend umgebaut und renoviert. Das bestehende kleinräumig Chalet wurde in ein modernes grosszügiges Ferienhaus umgebaut, insbesondere waren die Aussenbezüge im Norden zum See und im Süden zur Rigi wichtige Randbedingungen für die Entwurfsarbeit. Das Ferienhaus passt sich durch Materialität und Farbgebung der Holzfassade harmonisch ins landschaftliche Umfeld ein.
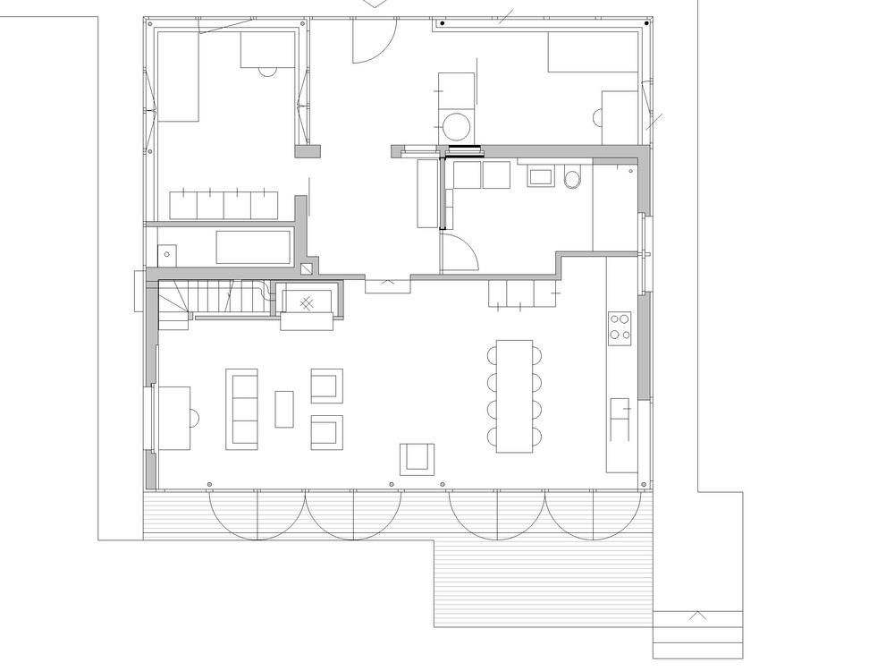
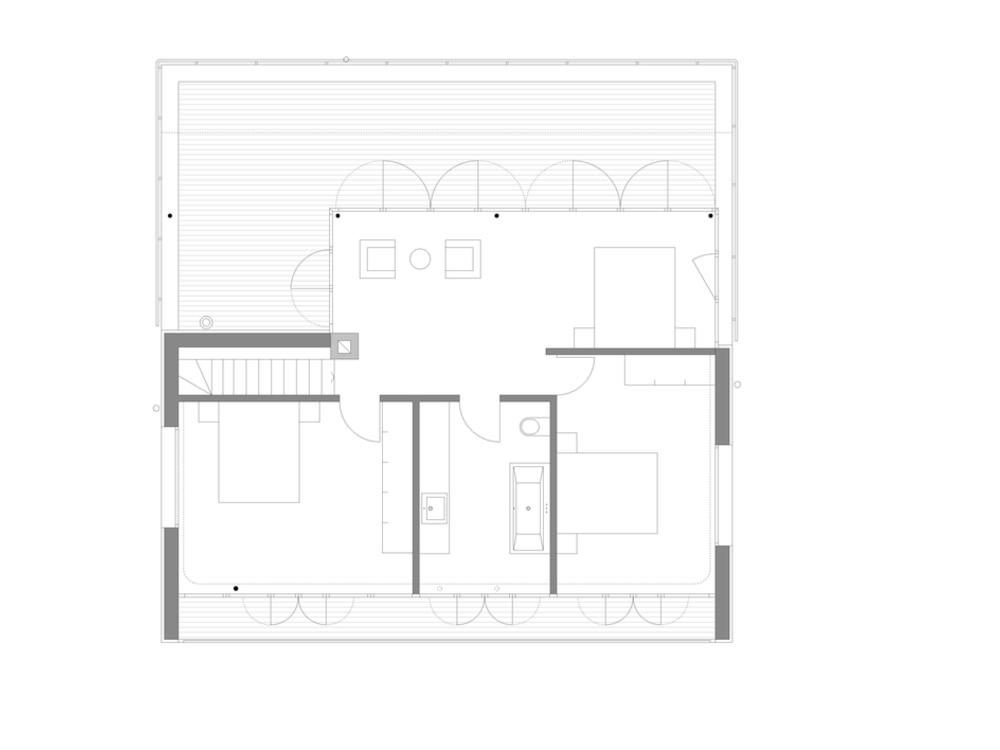
Im Erdgeschoss erstreckt sich ein grosszügiger Wohnraum mit Cheminée und Küche über die gesamte Gebäudebreite und bietet durch die Fensterfront einen weiten Blick über den Zugersee. Der Wohnraum bildet dadurch eine Einheit mit dem Aussenraum und lässt einen so die Natur intensiv erleben. Die roten Wände unterstützen diese Wirkung zusätzlich. Eine lange Holzterasse bildet den Übergang zur Wiese und zum Uferbereich. Auf der Südseite im Bereich des Zufahrthofes wurde das Erdgeschoss um einen neuen Eingangsbereich und ein zusätzliches Zimmer erweitert. Im neuen Attikageschoss befinden sich die Schlafräume auf der Seeseite, eine grosszügige südexponierte Dachterasse schafft einen weiteren attraktiven Aufenthaltsbereich.







































