Kath. Begegnungszentrum Liebfrauen, Nussbaumen
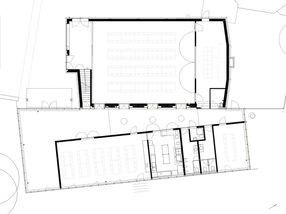
kurzdaten Bauherrschaft Kath. Kirchgemeinde Kirchdorf · 2003 · Umbau der alten Kirche von 1949 in einen Veranstaltungssaal, Neubau mit Foyer, Pfarreistube, Sitzungszimmer, Küche, Umgebungsgestaltung · Kosten 2.5 Mio Franken
Das neue Begegnungszentrum steht der dominanten introvertierten Kirche von 1967 als offener Gebäudekomplex gegenüber. Es besteht aus der Alten Kirche von 1949 und einem eingeschossigen Erweiterungsbau. Der auf einer Terrasse gelegene Kirchenplatz bildet den eigentlichen Mittelpunkt der gesamten Anlage. Durch die Position des neuen Anbaus seitlich entlang der Alten Kirche wird er neu definiert und erweitert. Die Kirche und das neue Begegnungszentrum flankieren den Platz mit ihren Fassaden, mit ihren Volumen stehen sie jedoch im leicht abfallenden Gelände im Grünen. Der Künstler Paul Wyss aus Kappel entwickelte die farbige Gestaltung der Fassade wie auch der Foyerwände. So werden die beiden in ihrem Ausdruck gegensätzlichen Gebäudeteile mit dem Mittel der Farbe zu einem spannungsvollen Ganzen zusammengefügt. Das Leuchten der Farben spricht den Besucher an, lädt ein näherzutreten und zu verweilen. In ihrer äusseren Erscheinung bleibt die Alte Kirche klar ablesbar. Das leuchtende Dunkelrot der Fassade verleiht ihr neue Präsenz und nimmt sie gleichzeitig optisch zurück, um so dem dominanten Kirchenbau mehr Raum zu geben. Das neue grosszügige Foyer heisst die Besucher mit einem leuchtenden Gelb und durch das schräg angehobene Dach willkommen. Umgeben von mächtigen Kiefern und Birken ist es gleichzeitig Eingang, Empfangs- und Begegnungsraum. Pfarreistube, Sitzungszimmer und Küche sind ebenfalls mit diesem leuchtend gelben Wandbild umhüllt und orientieren sich zur grünen Umgebung. Der Saal, ein ursprünglich introvertierter Kirchenraum, wird durch die neuen grosszügigen Oberlichter zu einem hellen luftigen Raum mit heiterer Atmosphäre. Direkten Bezug zum Kirchenplatz schaffen die neuen grossen Fensteröffnungen auf Platzniveau. Veranstaltungen können somit übergreifend sowohl drinnen als auch draussen stattfinden. Der Saal bietet Platz für 120 Personen und verfügt über eine kleine Bühne.

































